доставка
оборудования
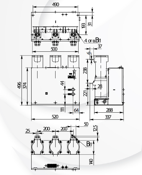
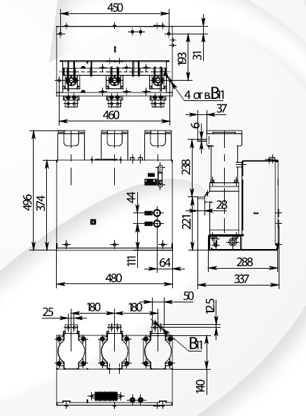
Структура условного обозначения типоисполнений выключателя: ВВТ-10-Х/Х УХЛ2 Х «БРИЗ» В - Выключатель В - Вакуумный Т - Конструктивное исполнение (трехполюсный) 10 - Номинальное напряжение, кВ Х - Номинальный ток отключения, кА Х - Номинальный ток, А УХЛ2 - Климатическое исполнение и категория размещения в соответствии с ГОСТ 15150-69 и ГОСТ 15543.1-89 Х - Порядковый номер исполнения выключателя по Приложению Г «БРИЗ» - торговая марка
| 1. Номинальное напряжение, Uном кВ | 10 |
| 2. Номинальный ток отключения, Io ном., кА | 20 |
| 3. Номинальный ток, Iном.,А | 630, 1000 |
| 4. Наибольшее рабочее напряжение, Uн.р кВ | 12 |
| 5. Ток термической стойкости, Iт, в течение 3с, кА | 20 |
| 6. Ток электродинамической стойкости, Ig, кА | 51 |
| 7. Полное время отключения to, c, не более | 0,05 |
| 8. Собственное время отключения, to.c, с, не более | 0,03 |
| 9. Собственное время включения, tвс, с, не более | 0,05 |
| 10. Испытательное кратковременное напряжение промышленной частоты: одноминутное, Uисп., кВ | 42 |
| 11. Испытательное напряжение полного грозового импульса, Uисп. имп, кВ | 75 |
| 12. Масса исполнение 017, кг: | не более 50 |
| 12. Масса исполнение 028, кг: | не более 54 |
| 15. Ресурс по механической стойкости, циклы “В-tп-О” (включение - произвольная пауза- отключение) | 50 000 |
| 16. Ресурс по коммутационной стойкости без замены камеры дугогасительной вакуумной (КДВ): при номинальном токе, циклы “В-tп-О” при номинальном токе отключения, циклы “ВО” | 50 000 100 |
| 17. Установленная безотказная наработка, циклы “B-tn-О” | 20 000 |
| 18. Срок службы до списания, лет, не менее | 30 |
| 19. Номинальное напряжение электромагнитов управления YAT, YAC, YAV и двигателя, В: | |
| переменного тока | 100, 220 |
| постоянного тока | 110, 220 |
| 20. Пределы напряжения: | |
| - на двигателе(при времени заводки не более 20 с.) и электромагните включения YAC, в процентах от номинального напряжения: - на зажимах электромагнитов управления YAT,YAV: |
80-110 |
| при питании постоянным током: | 70-110 |
| при питании переменным током: | 65-120 |
| 21. Ток потребления электромагнитов YAC YAT,YAV,A,не более | 1,5 |
| 22. Ток срабатывания токовых электромагнитов отключения для схем с дешунтированием YAA, А | 5;3* |
| 23. Номинальное напряжение переменного тока коммутирующих контактов для внешних цепей при переменном токе, В | 220 |
| 24. Технические параметры коммутирующих контактов для внешних и вспомогательных цепей управления: номинальное напряжение переменного тока частоты 50Гц, В |
24-660 |
| номинальный ток, А, | 10 |
| 25. Потребляемая мощность токовых электромагнитов отключения YAA при воздушном зазоре 10 мм и опущенном сердечнике, ВА, не более | 30 |
| 26. Потребляемая мощность электродвигателя заводки рабочих пружин привода, Вт, не более | 400 |
| 27. Время заводки рабочих пружин привода на одну операцию включения при номинальном напряжении, с, не более |
12 |
| 28. Ход подвижного контакта, мм | 8+2 |
| 29. Ход пружины отключения, мм | 30+0,5 |
| 30. Допустимый износ контактов, мм, не более | 2 |
| 31. Пределы напряжения на зажимах электромагнитов управления в процентах от номинального напряжения: электромагнита включения электромагнита отключения, электромагнита отключения независимого питания: |
85-110 |
| при питании постоянным током | 70-110 |
| при питании переменным током | 65-120 |
| 32.Электрическое сопротивление полюсов главной цепи, мкОм, не более: | |
| для тока 630А | 100 |
| для тока 1000А | 55 |
Выключатели со встроенным электромагнитным приводом предназначены для коммутации электрических цепей при нормальных и аварийных режимах в сетях трехфазного переменного тока с изолированной нейтралью частоты 50 Гц с номинальным напряжением 10 кВ. Устанавливаются в шкафах комплектных распределительных устройств (КРУ), камерах стационарных одностороннего обслуживания (КСО), а также используются для замены маломасляных и электромагнитных выключателей. Выключатели типа ВВТ-10 «БРИЗ» соответствуют техническим условиям ТУ БЕКР 3414-007-13614910 2010.
Принцип работы выключателя основан на гашении электрической дуги, возникающей между контактами в вакууме, обладающей высокой электрической прочностью. Операция включения осуществляется за счет энергии электромагнита включения, а отключение - за счет отключающих пружин и пружин поджатия контактов, которые срабатывают при воздействии одного из электромагнитов отключения или кнопки отключения на защелку привода, удерживающую выключатель во включенном положении.