Перейти к основному содержанию

Выключатель нагрузки ВНРп 10/630 УХЛ2

Получить консультацию по товару:
Цену уточняйте
Бесплатная
доставка
Монтаж
оборудования
Сервис

Марка: ВНРп

Номинальный ток: 630

Исполнение: с рамой под предохранители, с ножом заземления

Напряжение: 10

Климатическое исполнение УХЛ2


Наименование параметра Единица изм. Значение
Номинальное напряжение кВ 10
Наибольшее рабочее напряжение кВ 12
Номинальный ток А 630
Наибольший ток (ток электродинамической стойкости) кА 25
Номинальное начальное значение периодической составляющей сквозного тока короткого замыкания кА 10
Среднеквадратичное значение тока за время его протекания (ток термической стойкости) кА 20
Время протекания тока (время короткого замыкания) с 1
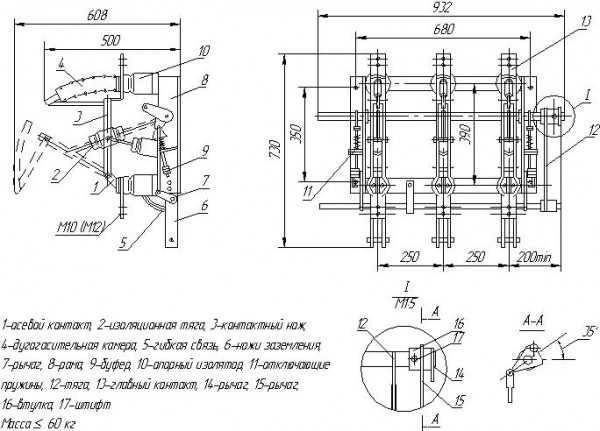
Масса с заземляющими ножами (с заземляющими ножами и предохранителями), не более кг 60 (90)
Габаритные размеры ВНР-10/630-10зУ3 (габаритные размеры ВПР-10/630-10зпУ3), длина x ширина x высота мм 730х500х932 (1090х932х608)
Срок службы до списания лет 25

Современные выключатели ВНР могут считаться относительно простыми устройствами. Однако именно упрощенная конструкция делает выключатели столь эффективными и надежными в эксплуатации. Выключатель нагрузки ВНР состоит из рамы с валом, которая служит основанием для шести изоляторов (по три с каждой стороны). На трех изоляторах находятся главные контакты и дугогасительные контакты. На трех других изоляторах располагаются специальные контактные ножи, дающие возможность замыкать и размыкать цепь. Помимо этого, на раме располагаются рычаги, движение от которых через изоляционные тяги передается контактным ножам. По оба конца вала находятся отключательные пружины и буферы из резины. Все элементы конструкции выполняются из надежных материалов, защищенных от коррозии, что позволяет эксплуатировать выключатели ВНР в течение длительного времени.